Loading...

Le Garden Building

Lebanon

2019

Le Garden Building

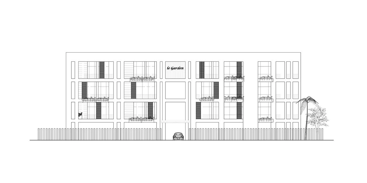
The Garden building is located in a rapid growing residential areas, famous for its low rise apartment buildings. The developer wanted a commercial apartment building that can be differentiated form the other marketing offering to enhance his real estate brand and increase profitability and sales.


On analyzing the architectural scene in the area, one can easily notice a repeated pattern of a single block building with front terraces that are rarely used for being too narrow. Those terraces were mostly added by developers to increase revenue as the allow allows additional 20% terrace floor area for each plot provided those were built as terraces.


Our approach was based on reclaiming those 20% back to the floor plan by providing terraces that can be really used. Our proposal for the building suggests two blocks that are connected by a continuous façade with extensive greenery that provided high level of privacy for each apartment. 

Locations

Lebanon

Size

2500

Year

2019

Status

Design

Services

  • Architecture & Landscape Design

The faced was divided into smaller opening by vertical and horizontal beams and columns that are cladded with stone. Those smaller opening can allow users to close terraces with simple glass windows without affecting the overall shape of the project.

The face is also used as a traditional Vine structure common in the area, where it can be used to grow extending vegetation and greenery.