Loading...

HK Villa

Lebanon

2020

HK Villa

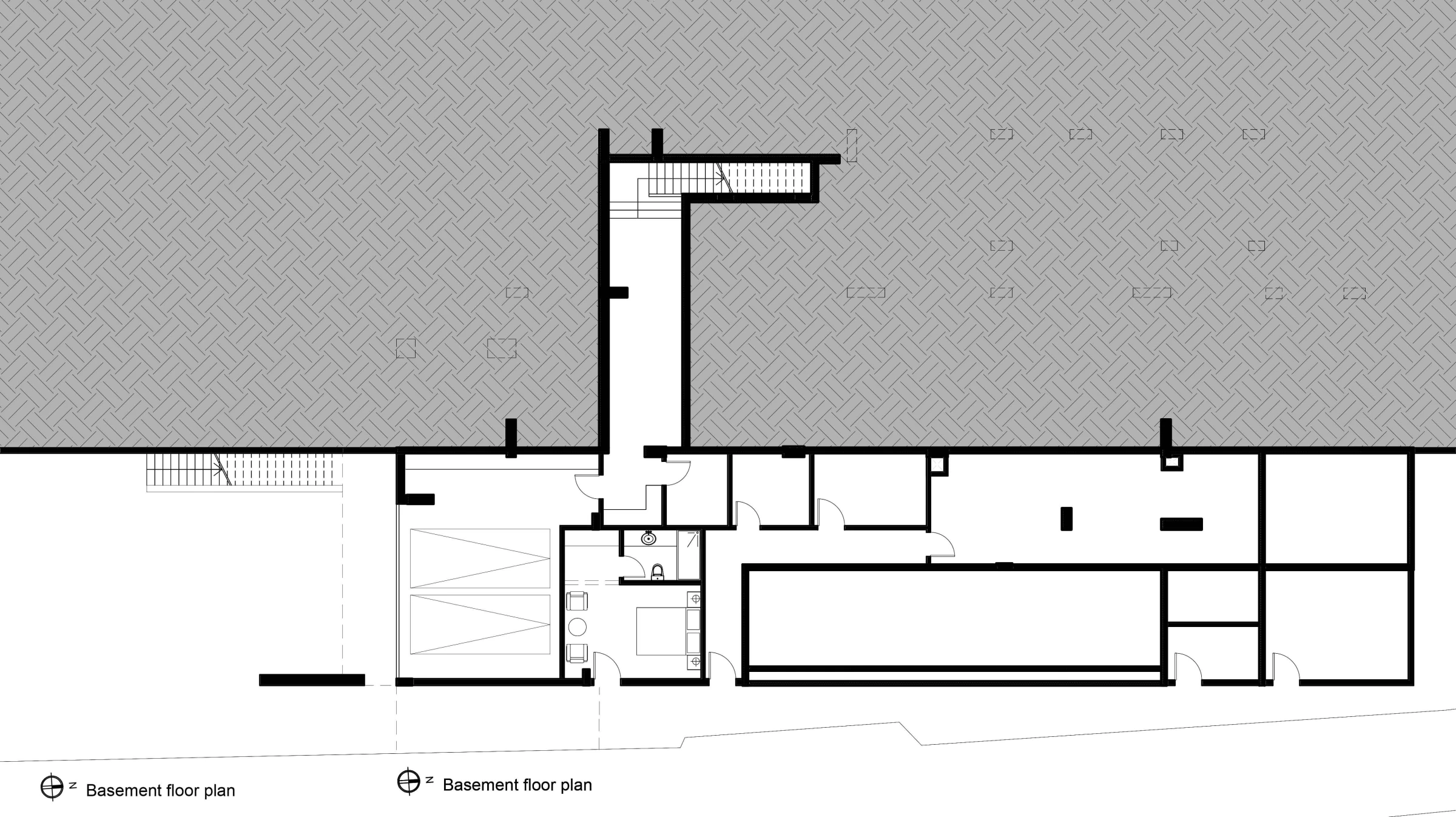
The site of the HK Villa is a very steep mountain that was cut into a series of horizontal narrow and long platforms with a visible cliff side that are almost vertical and exceed 15 meters in some locations. The challenge was to provide a large estate with various indoor and outdoor facilities on a very tight site, and still offering a relaxed and modern environment inside.


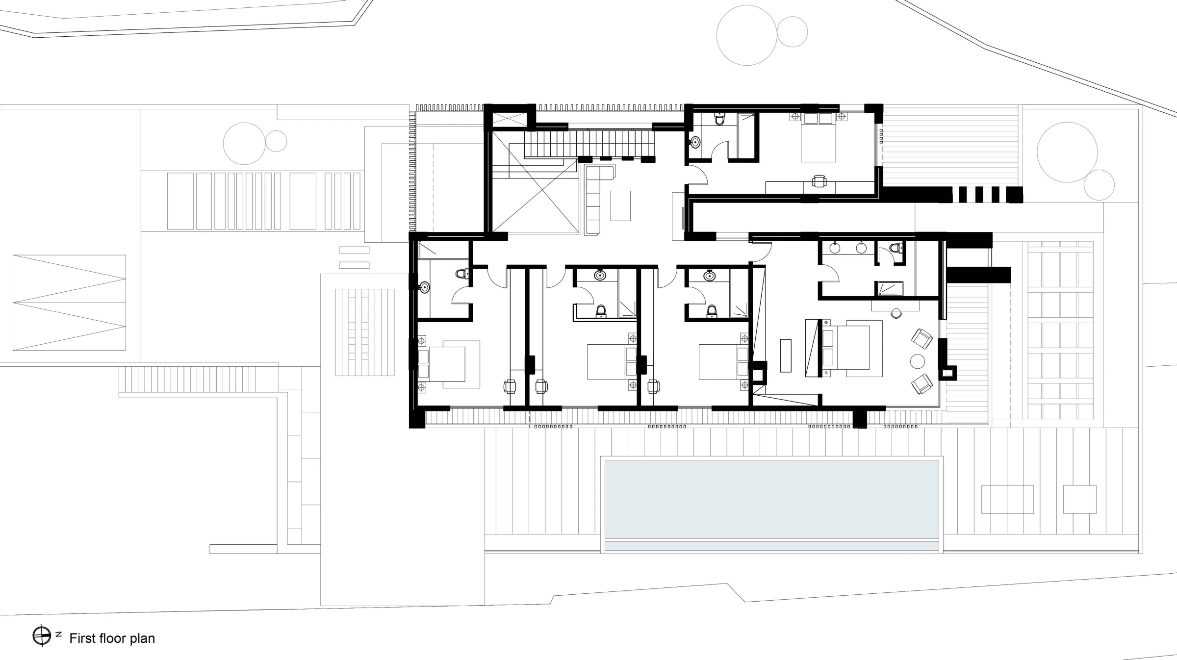
Our response to the project condition was to create a linear horizontal series of slabs that float over the cliff side, and reduce the site verticality. The slabs twist to the entrance side to provide additional privacy, while they are kept floating to the cliff side to maximize views.

Locations

Lebanon

Size

1800

Year

2020

Status

Design

Services

  • Architecture & Landscape Design
  • Interior Design
  • Engineering Services

The ground and main floor contains the main kitchen, reception, dinning, and living rooms. All rooms enjoy a full floor to ceiling glass to a large side terrace with an infinity pool. This maximizes the floor area by three time during summer time, offering an expansive space for activity, connection, leisure and entertainment for the residents and the guest.


The facades are cladded with local quarry stone from the site, with a series of horizontal metal panels that add further shading.