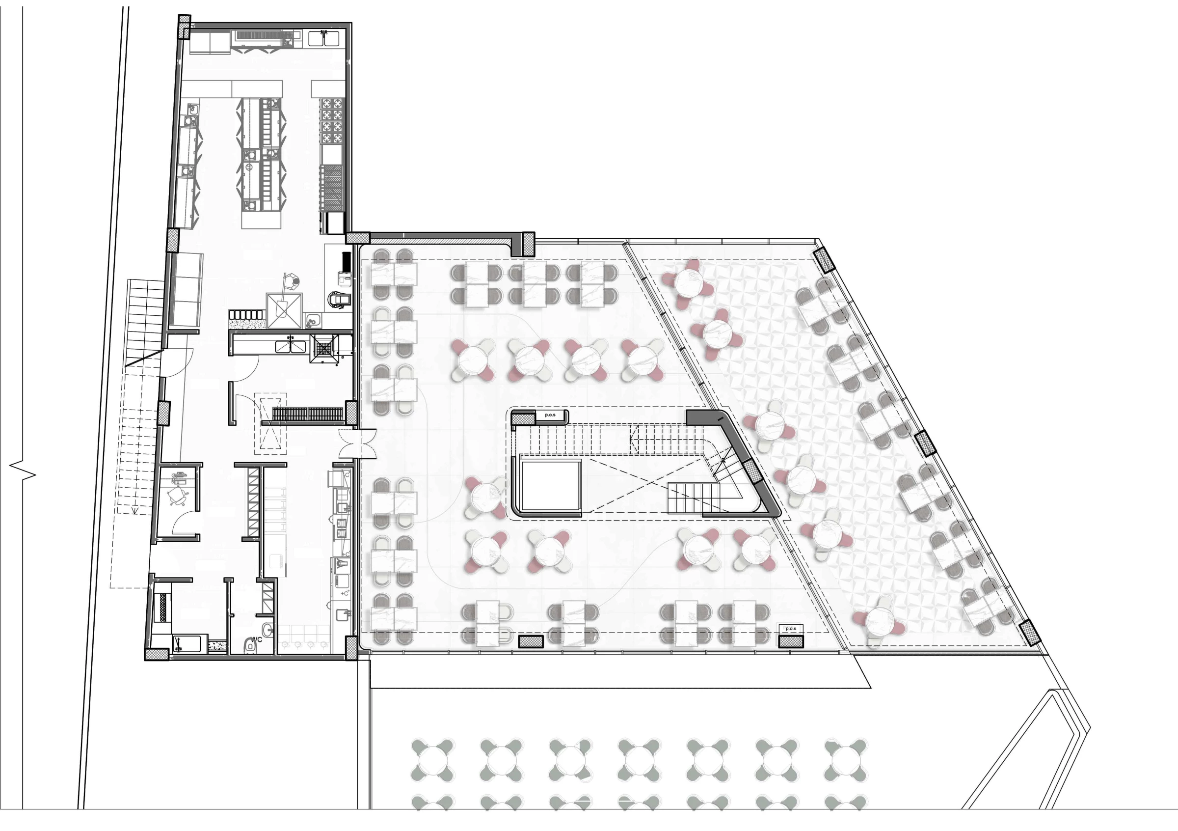
Restaurant B is an upscale and high-end Lebanese exotic food place, intended to offer a luxurious dining experience in an upscale neighborhood in the city of Riyadh.
The design concept focused on refining the use of traditional material and re introducing them in a highly minimalist form, with intricate details requiring large attention on both fabrication and installation.
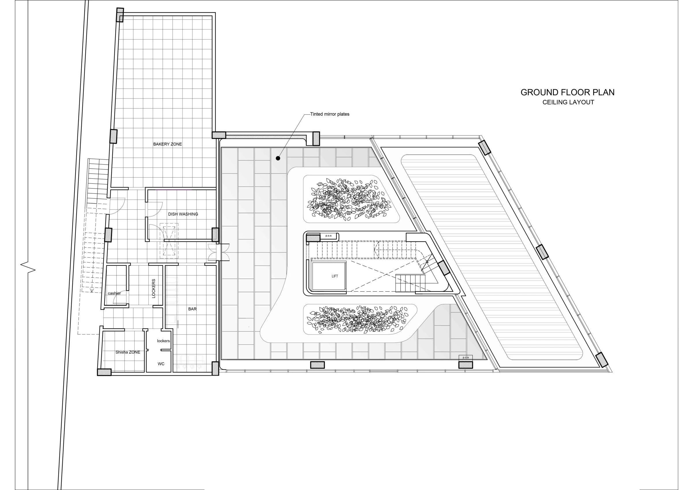
The interior is clad in large slabs of limestone in minimal joints, that wrap around a central courtyard clad in blue woodwork. The interior is envisioned like an interior garden with olive trees that wrap a stair leading to the upper floor. The ceiling is kept simple and covered with custom made glass light inspired by olive trees.
 
     
                             
                         
                 
                             
                                 
                             
                                 
                             
                                 
                            